Add a roof to the elevation.
|
Icon |
Command |
Menu |
Toolbar |
|
|
TK_ARCHROOF |
Toolkit |
Architectural |
This function allows you to add a roof once the elevations views have been completed.
Remember to set the roof parameters such as pitch, pen and line style before running this function.
Procedure
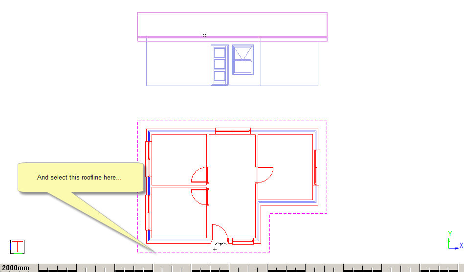
Select roofline on elevation's roof level (else spacebar to exit)


Click Yes if you have selected the correct line; or No to select again.
Select nearest applicable parallel roofline on plan view for front gable or side gable

Select face gable on plan view to draw side gable (else spacebar for face gable)



Click Yes for a face gable. The roof is drawn as follows.

Click No for a hipped end the roof. This roof is drawn as follows.

If you want to add a combination of side gable and hipped end to the following elevation, the elevation must be generated in two steps.








Or hipped roof.

